Ruime tussenwoning Haarlem
Deze tussenwoning is pas in 2018 opgeleverd maar toch waren de bewoners niet helemaal tevreden met de keuzes die zij destijds in het bouwproces (niet) gemaakt hadden. Daarom wilden ze meerdere zaken veranderen, maar deze keer met advies en begeleiding.
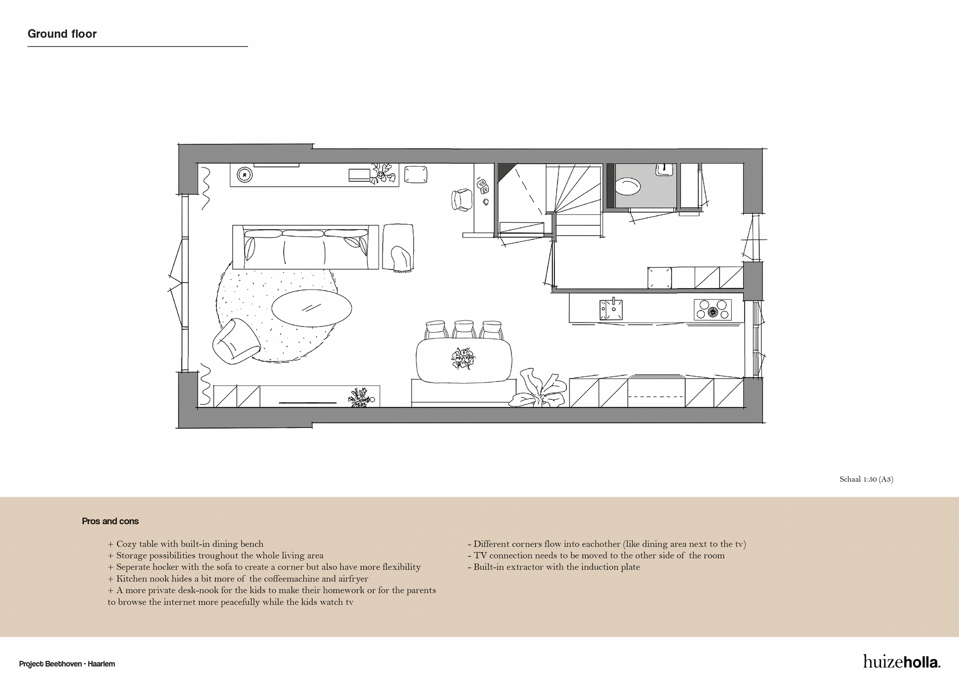
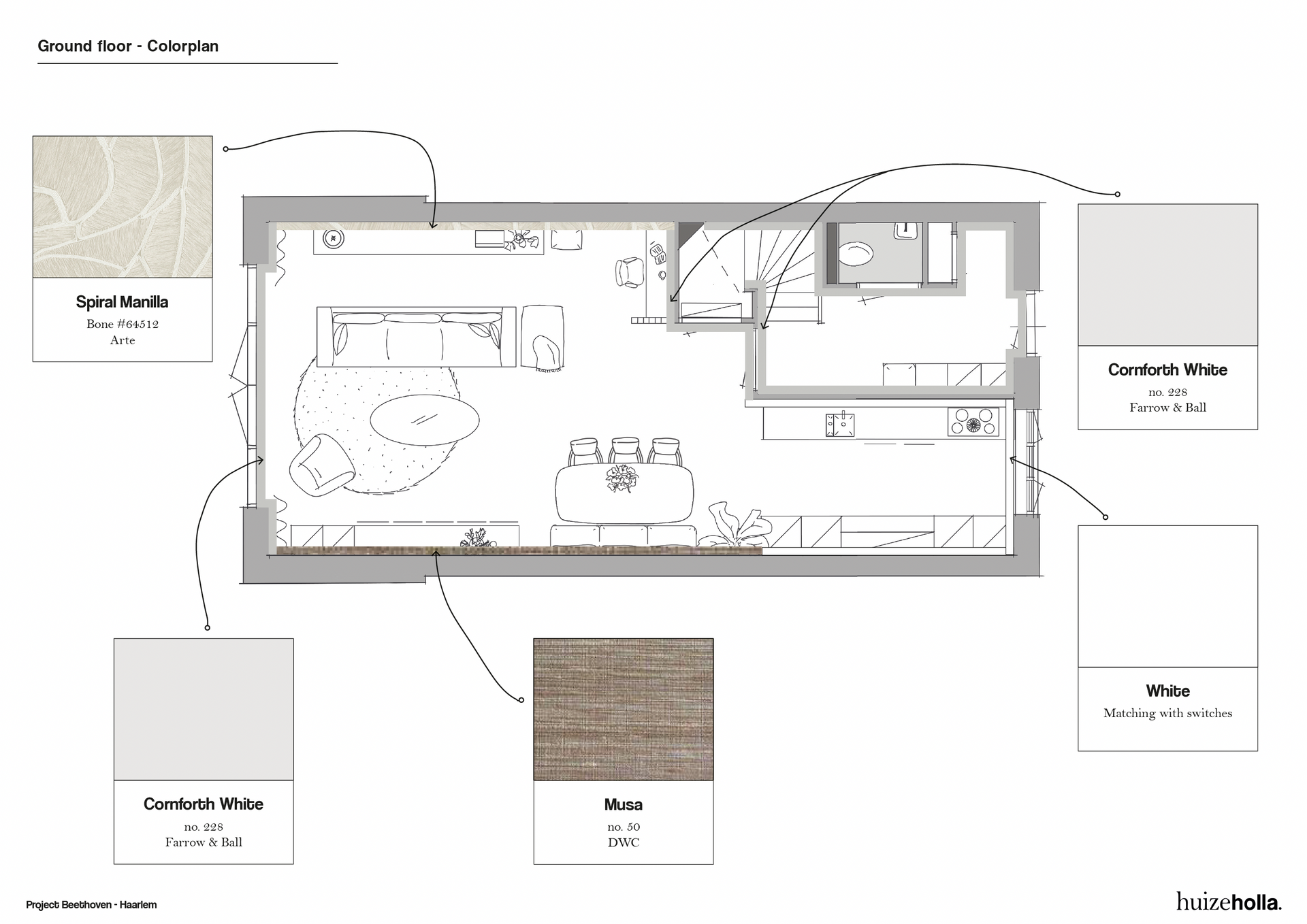
Op de beneden verdieping is de indeling aangepast waardoor de zichtlijnen en looprichting beter in lijn zijn met de woning en de wensen van de bewoners. Ook is voor de keuken een nieuw ontwerp gemaakt omdat ze daar veel dagelijkse ergernissen ervaarden. Daarnaast is er maatwerk toegepast om zo veel mogelijk opbergruimte te creëren. Hierdoor kunnen ze hun spullen uit het zicht en op een eigen specifieke plek opbergen.
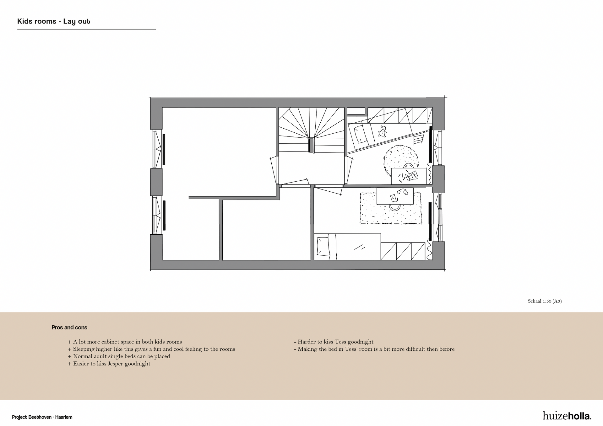
Ook de kinderkamers krijgen maatwerk oplossingen om alles uit de wat kleinere kamers te kunnen halen. Op dit moment willen de kinderen nog graag op dezelfde verdieping als hun ouders slapen. Maar er wordt al rekening gehouden met een eventuele andere situatie in de toekomst.
Op zolder waren twee grote kamers die werden gebruikt als kantoor, logeerplek, verzamelhok etc. Hier wilden ze een betere indeling en betere scheiding van functies. We hebben ervoor gekozen om 3 slaapkamers te creëren, 2 dakkapellen toe te voegen en ook de hoge nok (6m!) te benutten d.m.v. een opbergvide. Ook hier wordt i.v.m. de vele schuine kanten gebruik gemaakt van maatwerk kasten.
- Project loopt nog. Meer beeld volgt nader.














