Duurzame watervilla Cruquius
Dit jonge gezin uit Haarlem gaat de stap maken naar een mooie 2-onder-1 kap woning in Cruquius, aan het water! Doordat de woning uit twee verdiepingen bestaat zijn alle kamers ruimer opgezet dan een gemiddelde nieuwbouwwoning. Dit biedt een hoop mogelijkheden qua indeling.
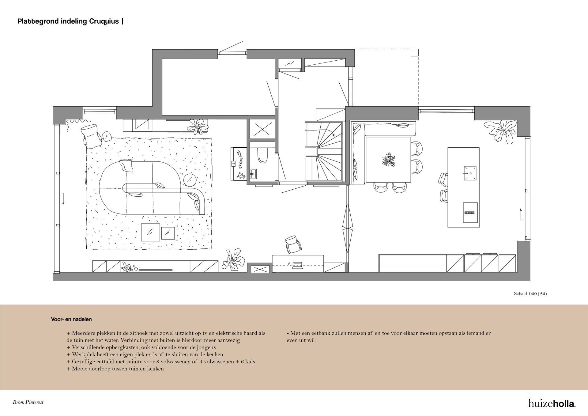
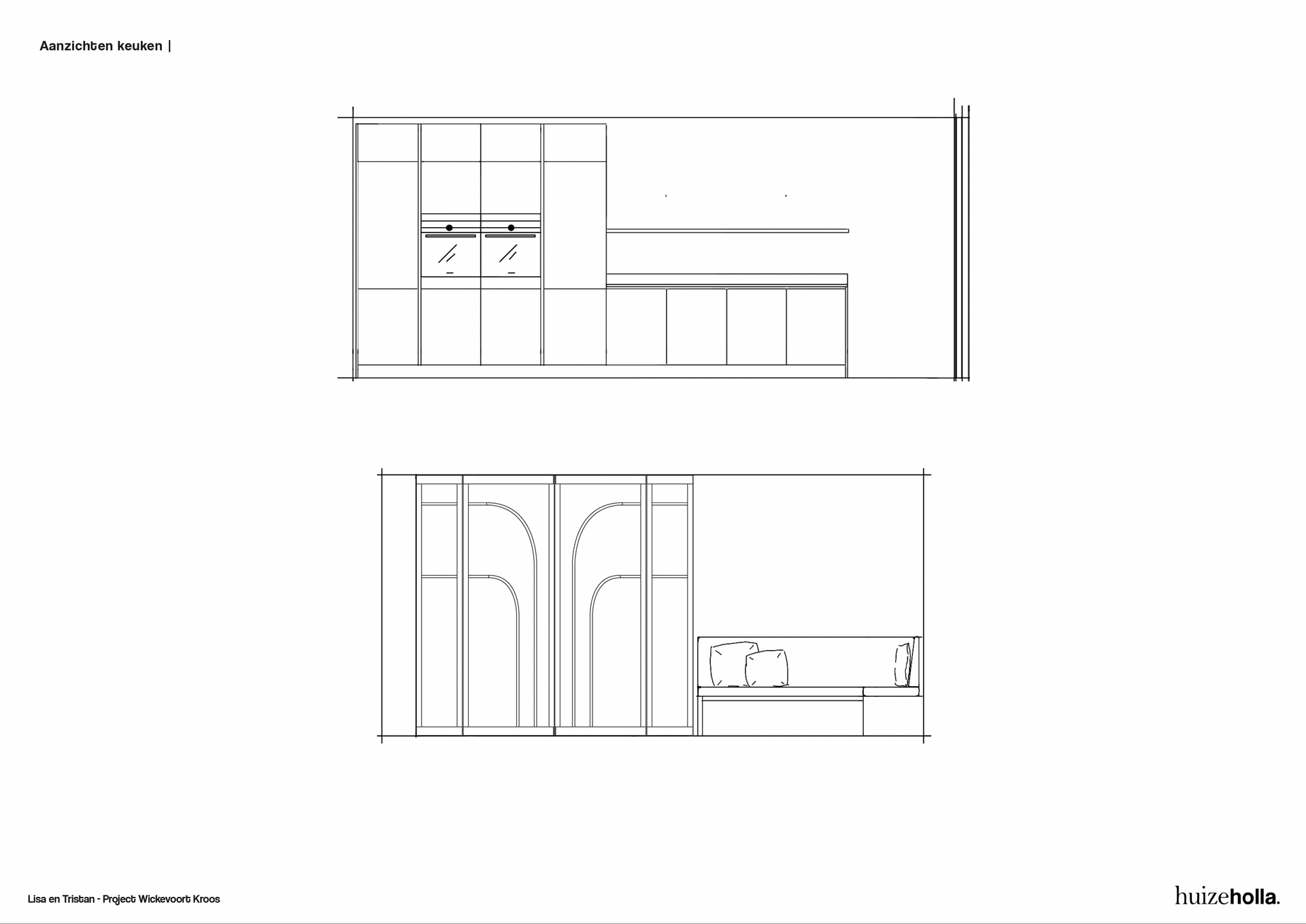
Zo komt er in de woonkamer een dubbele functie, nml een ruime plek voor de tv én een heerlijke plek bij het (elektrische) haardje. Door een modulair en speels zitelement in het midden van de kamer te plaatsen verbind je beide functies en voelt de ruimte als een mooi geheel. Ook de leefkeuken is groot van formaat. Naast een royale keuken met kookeiland komt er ook een gezellige vierkante tafel met zitbank. Je kunt je al goed voorstellen hoe er vriendjes door de schuifpui aan komen waaien om aan te schuiven voor tosti's op woensdagmiddag.
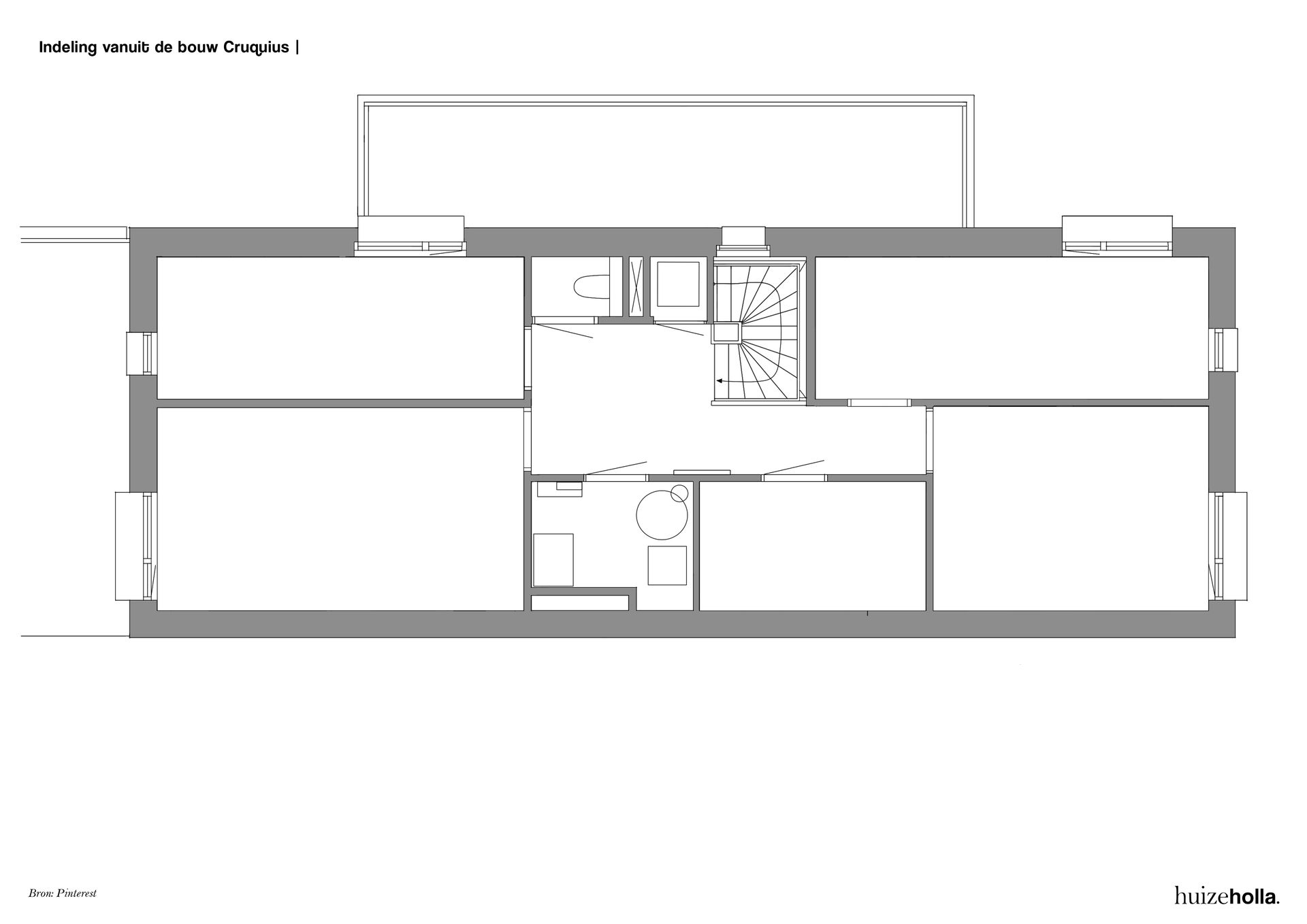
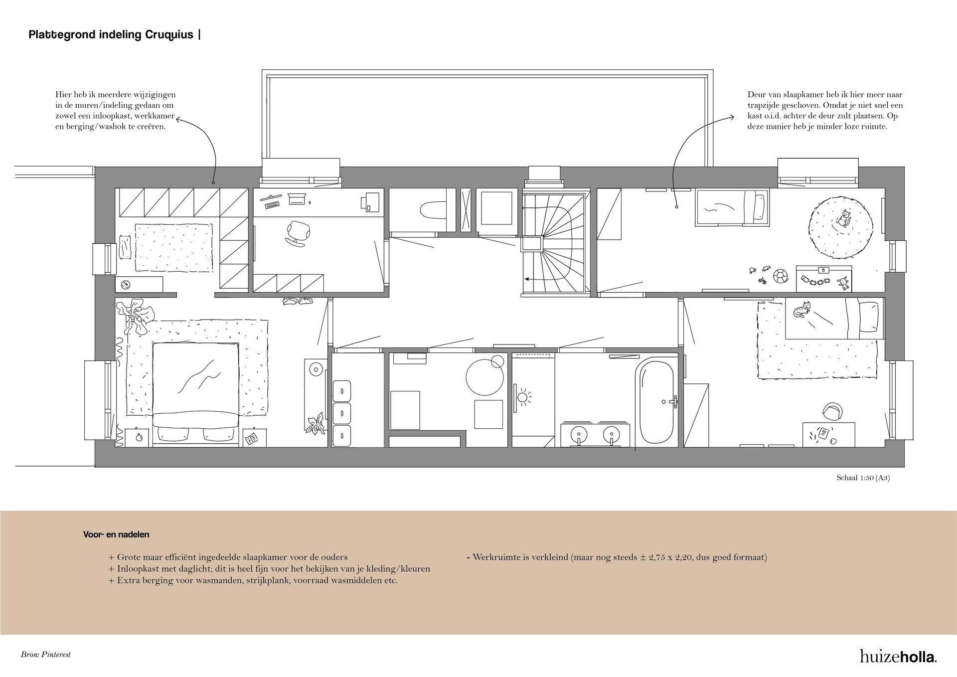
Ook de bovenverdieping had vanuit de bouw 4 ruime kamers. Zo ruim dat het voor 3 slaapkamers en 1 grote werkkamer zelfs een beetje overdreven was. Daarom hebben we 1 kamer in 2 delen gesplitst. Het ene deel wordt een inloopkast voor de ouderslaapkamer. Het andere deel wordt een werkkamer met nog steeds voldoende bureauruimte en een ruime archiefkast. Ook de ouderslaapkamer was zo ruim dat we daar de indeling hebben aangepast voor een extra waskast. Aangezien de woning geen zolder heeft is er anders niet direct plek voor wasmanden of een strijkplank. Op deze manier maak je functioneler gebruik van de ruimte en is het gemakkelijker een opgeruimd en fijn huis te behouden.
- Woning wordt nog gebouwd. Meer beeld volgt nader.










